欢迎光临大连市金州风机厂官网!
全国咨询热线: 0411-87693246
热门关键词: 一般离心通风机
当前位置:主页 > 产品展示 > 一般离心通风机

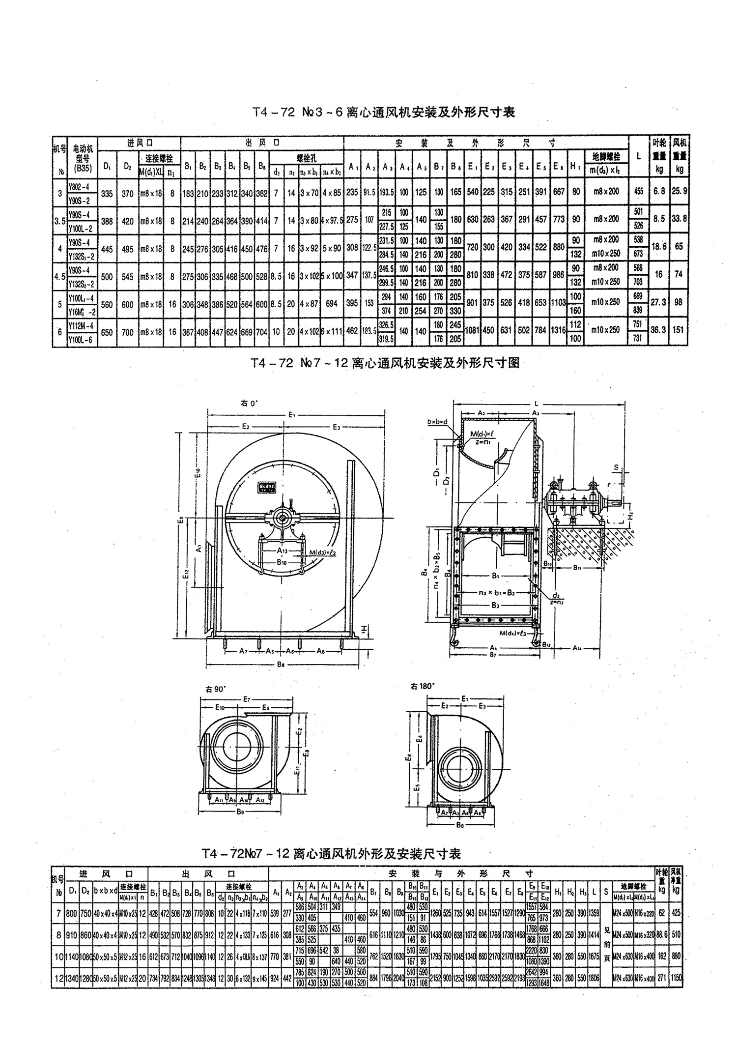
T4 - 72 离心通风机

T4-72离心通风机的特点是叶轮为后倾圆弧薄板型叶片,传动方式分A、C二种,此风机为一般通风换气,作为一般工厂及大型建筑物的室内通风换气,输入、输出气体均可,输送气体应为空气和其它不自燃的、对人体无害的,对钢铁材料无腐蚀性的气体,气体内不许有粘性物质,所含的尘土及硬质颗粒不大于150mg/ m³,气体温度不得大于80℃。

产品详情

采购:
看不清请点击
在线客服
联系方式

热线电话

13889691858

上班时间

周一到周五

公司电话

0411-87693246

二维码
线